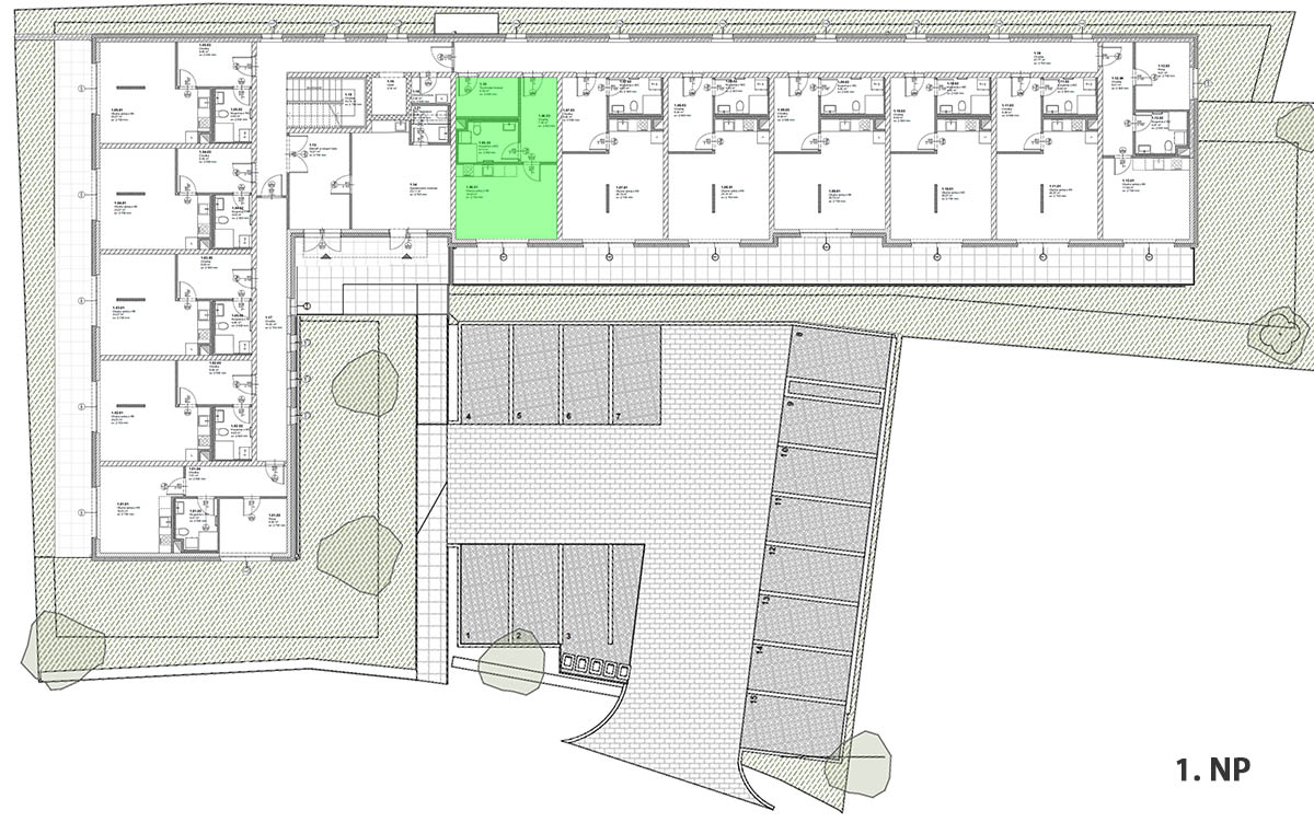
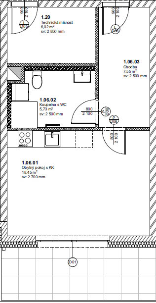
| Podlaží: | 1. NP |
| Byt: | 1+kk |
| Plocha: | 31,70 m2 |
| Předzahrádka: | Ano |
| Pojištění domácnosti: | řeší si sám nájemce |
×
| Nájem: | 6 604 Kč/měsíc |
| Elektřina: | 1800 Kč/měsíc |
| Vodné a stočné | 80Kč/m3 |
| Popelnice: | 800 Kč/rok/osoba |
| Televize a rozhlas: | 205 Kč/měsíc |
* Uvedené ceny jsou orientační (mohou se měnit v závislosti na aktuální ceně dodavatele energii, sazeb obce a státu).
